Skip to Content

Plan

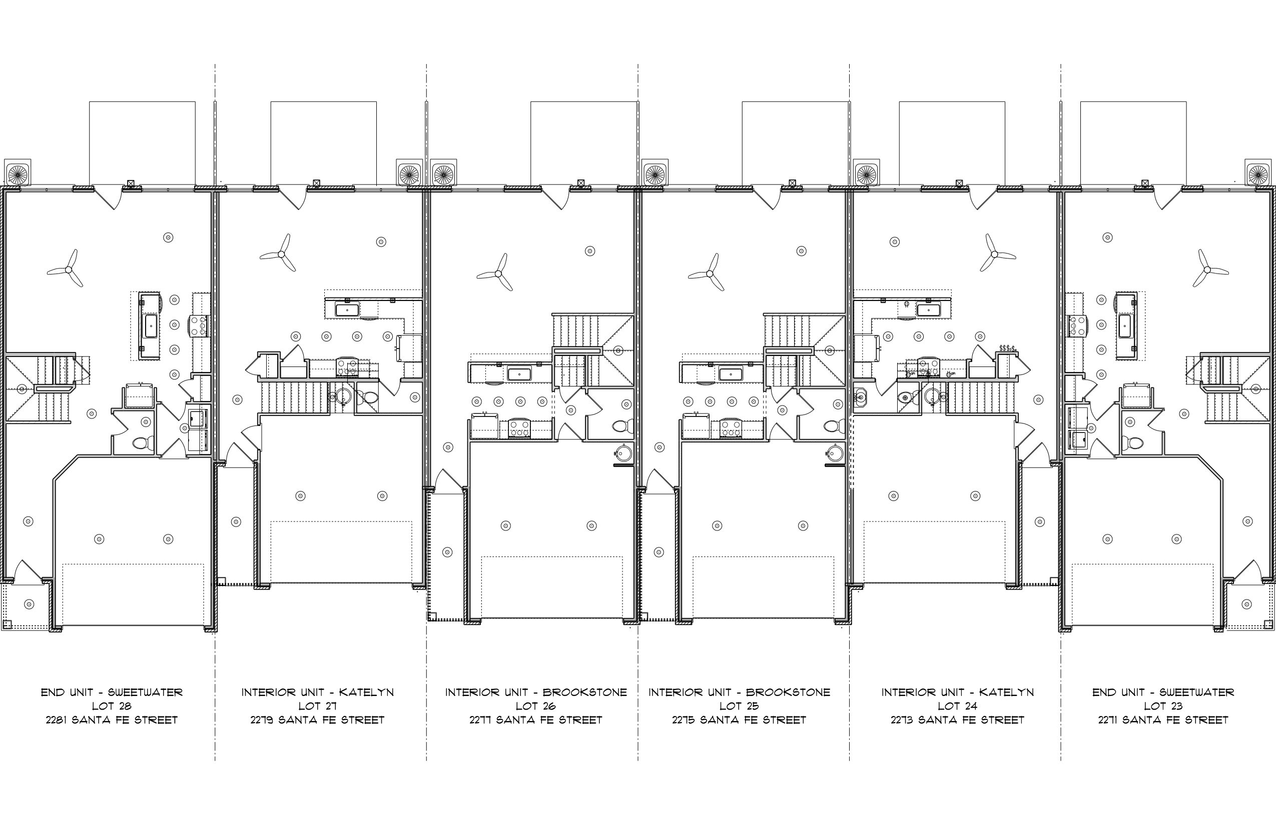
The Katelyn

Contact For Pricing

One Year Warranty Logo

This 2-story townhome plan offers 1,637 square feet of comfortable living space with 3 bedrooms, 2.5 bathrooms, and a 2-car garage. Designed for modern townhome living, this plan provides plenty of space for everyday life while maintaining a low-maintenance lifestyle. With a functional design and room to grow, it’s an excellent option for families, professionals, or anyone looking for value and convenience.

  • 3
    Beds
  • 2.5
    Baths
  • 2
    Garages
  • 1,637
    SqFt

Elevations

Elevation Options Overview

Explore a variety of elevation choices tailored to your preferences. From classic designs to modern twists, find the perfect architectural style to complement your dream home.

Floorplans

Floorplans - Explore Your Space!

Available Communities & Lots

Communities & Lots Featuring The Katelyn

Explore all communities and lots in the area where The Katelyn is available.

Community Image
Coming Soon

Sonata

Morrow, Georgia

From $284,850

Contact Us

Want to Know More?

© Copyright 2026, Chisel Mill Homes. All Rights Reserved.